andarushia 0 Report post Posted December 26, 2011 (edited) It has been a hectic 2011. Started the search for my dream flat since end 2010. Been a Queenstown resident for as long as I can recall, hence the deep love for this area and wanted to find my wonderland here. The resale flat prices in this area is scary and it just seems like my dream is drifting further and further away. It was a usual motion of scanning through pages of resale flats on Iproperty when one caught my attention. The price is much higher than my budget but the photos of the flat held my interest. Finally I thought to myself:"Heck, viewing the flat is foc. What do I stand to lose other than several minutes?" Made the call, view the flat and it was love at first sight. Exercise OTP, first appointment in July, second appointment in September. The whole process was so surreal and I still cannot believe that I am a house owner =)A small 3I of 76 sqm is more than sufficient for me and my dog. Figure it will be easier to clean and maintain. Below is the floor plan of my house.This area is really quiet despite being next to a highway. There are plenty of greenery in the area which is suitable for an enjoyable stroll or run. Some photos of the neighbourhood: Edited December 26, 2011 by andarushia Share this post Link to post Share on other sites
Nellynutt 0 Report post Posted December 27, 2011 congrat.. looking forward to your reno pic Share this post Link to post Share on other sites
andarushia 0 Report post Posted December 27, 2011 Thanks Nettynutt. Reno was started in October and is completed in December. I am already enjoying the new house and even have had my Christmas celebration there. I have learnt alot from this forum and was inspired by many houses found in this t-Blog. Even after my reno is completed, I still find myself coming back to the forum on a daily basis. Finally, I decided to start my reflection on my recent reno process.Let me share some photos of the flat in its original state: Share this post Link to post Share on other sites
andarushia 0 Report post Posted December 27, 2011 (edited) Edited December 27, 2011 by andarushia Share this post Link to post Share on other sites
andarushia 0 Report post Posted December 27, 2011 My custom made metal gateLiving room decorated for Christmas Share this post Link to post Share on other sites
cjred 0 Report post Posted December 27, 2011 My custom made metal gateLiving room decorated for Christmaswhoa another 3 roomer! can't wait to see the progress Share this post Link to post Share on other sites
piknik 1 Report post Posted December 27, 2011 I love ur gate? Can you share the cost n the company who did it? Share this post Link to post Share on other sites
Nellynutt 0 Report post Posted December 27, 2011 :thumbs up: :thumbs up: cozy and nice... love the simple xmas decor.. CNY decor soon? Share this post Link to post Share on other sites
potatoes 0 Report post Posted December 28, 2011 Nice and Beautiful surrounding. Are u staying on high floor? The utility room big enough to be a bedroom? Share this post Link to post Share on other sites
andarushia 0 Report post Posted December 28, 2011 I love ur gate? Can you share the cost n the company who did it?I did not like any of the iron wrought gate provided by my ID so I was searching for gate design online when I chanced upon this website (http://www.panggiap88.com.sg/wi_doorgates.html). Show my ID the gate which I like and he is very sweet to go check out the supplier for me. Such gates are custom made, meaning they follow your design and weld on each part (the leaves and roses) one by one. As such, the gate is priced at a whooping S$800. My ID helped to source for another supplier who can do it at a lower cost and found one who is able to do it at S$750. Still expensive but we love the design too much to give it up :thumbs up: :thumbs up: cozy and nice... love the simple xmas decor.. CNY decor soon?Haha, I think so. Will be inviting friends over for CNY, already buying stuff for the new year! Nice and Beautiful surrounding. Are u staying on high floor? The utility room big enough to be a bedroom?Thank you! This block has 21 levels but I am staying at the rabbit hole aka level 2, hehe! The utility room is added during upgrading (paid for by the seller). It is a tight fit for using as a bedroom so the seller used it as dining area. However, I rather have my dining table in the living room as that I can eat and watch TV at the same time. Thus, I turn that into a U-shaped kitchen with plenty of cabinets. As you can see from my floor plan, there is no storeroom so having proper storage place without compromising the aesthetic look is a great challenge. That is the challenge (first of many) which my ID has to overcome Share this post Link to post Share on other sites
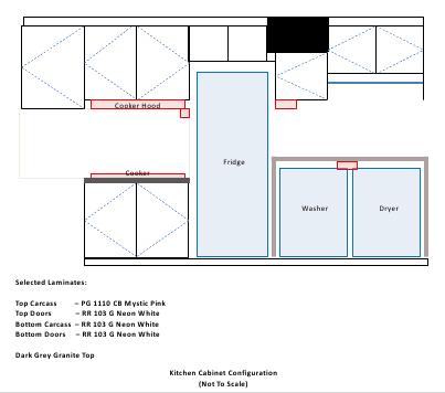
andarushia 0 Report post Posted December 28, 2011 (edited) My kitchen is my joy and pride. As mentioned in the previous post, due to lack of storeroom hence I am facing a storage war. It happened to be GSS After my first appointment so I was happily shopping for the new house. As a result, before I select my ID, I have already brought the major pieces of furniture and electrical appliances. I think my ID is a very brave soul to take up the challenge of doing a space planning layout to squeeze in all my purchases within a small small flat without compromising the look and feel of the place. A look at his work:Full height cabinet to use as a broom cabinet for storing all the pails, buckets, broom, mope and cleaning stuffs. That will keep all the clutter out of sight and out of mind.Plenty of drawers and overhead cabinets, happiness More overhead storage A big fridge for storing food and drinks for use during gatheringBosch washer and Rinnai dryer from SP gas side by side. Never like the idea of stacking them. Countertop over the laundry for folding clothes. There is a pole above to hang the clothes once I have placed them on a cloth hanger ... no crumpled clothes Washing dishes, in my opinion is the worst household chore. Thus the sink is infront of the window so the unfortunate person can kapoh on what is happening downstairs or enjoy the greenery outside while doing the dishes.My ID has planned the layout to the last cm, with minimum allowance. The delivery men was tested on their skills to place the fridge/washer and dryer into their rightful place. Luckily, everything is a nice fit like glove on a hand. Edited December 28, 2011 by andarushia Share this post Link to post Share on other sites
andarushia 0 Report post Posted December 28, 2011 (edited) Left a space to fit a bar stool so one can have a break as they cook.Useful dish drainer. It is wide enough to keep my big plates vertically in place and the plates do not have to lean on each other for support.All soft closing casement doors with no handles See the pink 3D laminate? My ID almost fell off his chair when we told him we like that. Both the colour and pattern are too unusual for use in the kitchen. After some debates & discussion, settle on pink and white glossy combination, pink doors with white body on one side, white doors with pink body on the other. Both me and my ID are happy with the final look Edited December 28, 2011 by andarushia Share this post Link to post Share on other sites