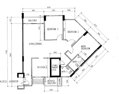
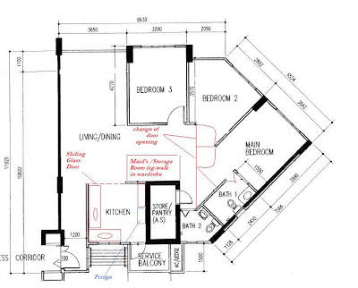
seashell 0 Report post Posted September 3, 2009 Finally, this is my floor plan of my dreamhouse... it has the worst layout one can ever imagine... alot of wastage and weird odd corners.. this house is just 9yrs old, i really wonder why the designers nowadays can design a house to be in such a layout.. Anyway, I already bought the house -- so I got to crack my brains to revamp it.... I have restructured most areas and alot of hacking works to be done... I went to many many IDs (30 plus) to quote me. Quotes were as high as $70K. Averagely also quoted me $50K. Finding a house is not easy, renovating ain't easy either. It really wasn't, I am sure those who gone through it would know what I mean... During the quotation stage, it was really tough. Even went to source for direct quotes from tilers, plumbers, eletrician and etc... Well, can't save much... Here's the original floor plan: Here's the MODIFIED floor plan -- modify n modify n modify at least until version 10 liao... Things to do: 1)Masonary All floor & wall tiles in the whole house hack & replaced with homo tiles Alteration of toilet entrance Construct a new room Hack kitchen walls to create open concept 2) Plubming-Whole house piping including hot water point for 2 toilet 3) Painting 4) Plastering for wall affected with hacking / building a new room 5) Almost whole house false-ceilings / LBOX (Living/dining, 3 bedrooms, 2 toilets and kitchen) 6) Change whole house iron grilles 7) Install alot of new lighting points 8) Full height feature wall with TV console for living & master room 9) Full height bedhead for master room 10) Walk in wardrobe 11) Change Bedroom doors to veneer 12) Install glass sliding door @ kitchen and shower screen for 2 toilets 13) Vanity cabinet c/w mirror with storage and light pelmet 14) Kitchen cabinet 15) Shoe cabinet.. The list goes on with several minor items... The damages have yet to be confirmed ^_^ Share this post Link to post Share on other sites
seashell 0 Report post Posted September 3, 2009 The BEFORE 'MAKEOVER' FOYER LIVING HALL WITH BALCONY KITCHEN ENTRANCE TO BEDROOM BEDROOM 1 ENTRANCE Share this post Link to post Share on other sites
seashell 0 Report post Posted September 3, 2009 COMMON TOILET MASTER TOILET MASTER TOILET VANITY Share this post Link to post Share on other sites
newnyew 1 Report post Posted September 3, 2009 Welcome welcome nice version 10.. hehe.. but is the maid's room really necessary? otherwise ur walkway become smaller lei? Share this post Link to post Share on other sites
seashell 0 Report post Posted September 3, 2009 (edited) hi new! surprised to see u still awake at this hour! yeah actually alot of ID ask me this question - is the room necessary n will my walkway look small...?? even got one ID wanna quarrel with me liao... haha.. originally, that place is to let people have dinner.. but i jus feel it is really a waste of space + not enough light + no wind to eat there.. not comfy.. when uncle make my room, he measure for me to make the walkway to have at least 1.2m -- the result, walkway still ok.. (update pic later) my house is really ugly layout -- it is a big challenge for me but i most welcome suggestions! Edited September 4, 2009 by seashell Share this post Link to post Share on other sites
newnyew 1 Report post Posted September 3, 2009 eh, u mean ur reno halfway thru already? Share this post Link to post Share on other sites
seashell 0 Report post Posted September 3, 2009 eh, u mean ur reno halfway thru already? yeah, been taken onto a roller coaster... very hope all these will end soon... -_- Share this post Link to post Share on other sites
newnyew 1 Report post Posted September 3, 2009 haiz, i understand u sooooo well... i started my reno on 23june. i also hope all will be done next week. Share this post Link to post Share on other sites
seashell 0 Report post Posted September 3, 2009 actually my floor plan is version 11 already... hahah Share this post Link to post Share on other sites
seashell 0 Report post Posted September 3, 2009 haiz, i understand u sooooo well... i started my reno on 23june. i also hope all will be done next week. u know what, i started around 25 July... till date, only 80% tiling work done... haiz... i am very tired n stressed out... chase chase chase until i feel like a fool Share this post Link to post Share on other sites
newnyew 1 Report post Posted September 3, 2009 show pics! Share this post Link to post Share on other sites
newnyew 1 Report post Posted September 3, 2009 so meaning no carpentry yet la? did he say why he drag so long? Share this post Link to post Share on other sites
seashell 0 Report post Posted September 3, 2009 Kitchen Newly constructed room Altered door openings at bedrooms Master toilet Common toilet Share this post Link to post Share on other sites
seashell 0 Report post Posted September 3, 2009 (edited) The tiles i used for my common toilet is very sensitive to cement... halfway tru, the tiles got stain and now still trying to remove the stains. uncle was told by the tileshop sure can remove... i am keeping fingers crossed. cus the wall tiles cost $15psf! Edited September 3, 2009 by seashell Share this post Link to post Share on other sites
seashell 0 Report post Posted September 3, 2009 so meaning no carpentry yet la? did he say why he drag so long? imagine i still have quite alot of outstanding items... i am going to chase again tommorrow.. imagine 7mth he still can be soo busy... Share this post Link to post Share on other sites