nylswaj 0 Report post Posted April 5, 2011 Hi all.. Thought I should start a t-blog to detail down our renovation process since its our very first home together which is at JadeSpring @ Yishun =) My fiance and I will be getting our keys in a few days time and SUPER excited can, been waiting and waiting, seeing other pple collecting their keys one by one thinking when is our turn.. But actually our flat initial expected completion date was supposed to be July 2012, and we are getting this quarter~! Imagine how fast it was built =) Of cos the first process was to search for an ID and we actually begin looking around since Jan this yr and finally finalised our ID in March.. Went through the same process, go through forum, ask around for recommendations, went IMM, went exhibition fairs and msging IDs asking for quotes and all.. It was so so tiring! But i guess its a happy one.. and i begin to feel its even more exciting to build our 1st home than preparing for our wedding which is in Oct later this year.Haha. Finallyyyyy.. selected our ID - Sunny from Baroque Design, I know there are bad reviews/comments about him here in renotalk, however fiance and I decided we are comfortable with him and his quote was 1 of the cheapest that we've sourced with more stuff and he's easy to negotiate and finally decided when he brought us to a flat he completed about 8 mths ago (and that was the flat that the lady from this forum intro) Like we told him our budget really really tight he will try his best to work within it and would tell us what can be done and what cannot be done. There were 2 things, one was the kicthen backing, told him we decided to do it, but as he know $$ tight, so total measurement was 13ft but he quote 10ft price and 3ft discount, also initially we didn't want window grills for whole house (only doing grills+windows for service yard initially), but later decided to do it due to safety reasons, and there's this small one he decided not to charge that small grill =) Sometimes you can tell whether an ID is sincere about doing your business or just simply wants to close his sale and then just leave it to his workers to do and don't really go down for site inspection of his workers. I've met an ID, already told him our budget, yet he went ahead to add this and add that, end up the quote was about $6K higher than our budget! and he said if we don't like from there can reduce from what he proposed, we didn't sense his sincerity though and heard he doesn't even require to go down to do on site measurement.. -_-" Anyways, as for Sunny, not all pple can accept his beng-ness laa, haha, but fiance and I easy-going and actually after meeting him a few more rounds he's really easy to talk to la, not rigid kind, and everytime i got things to ask him, sure can find him and he respond to me very fast. As a lot of pple say before, its really your comfort level with the ID, whether or not can click. Maybe I can click with this person, but you might not think so, so quite subjective lor. Haha. Our reno would probably start late next week once he submit to HDB and get approval to start reno and cos we are hacking a small wall, need to get PE approval also..Can't wait for it to start and be completed. Ok, think too much words, shall let the pictures do the talking, we are pretty satisifed with the 3D drawing, but all colours and materials not selected, its just a view for us to go home think if there's any things we wanna change or what. Living Room http://i1201.photobucket.com/albums/bb350/...DinningArea.jpg Shoe Cabinet http://i1201.photobucket.com/albums/bb350/...ShoeCabinet.jpg Living Room http://i1201.photobucket.com/albums/bb350/.../LivingRoom.jpg Kitchen http://i1201.photobucket.com/albums/bb350/...n04/Kitchen.jpg Thats all for now.. will update again when we get our keys! and our ID will be coming down to do site measurement when we get our keys also.. =) Share this post Link to post Share on other sites
friends78 0 Report post Posted April 5, 2011 Welcome! I always believe that selecting the one who does the reno is all about chemistry and being able to click. Trust your instinct, as long as u feel good and think he is good. Just go for it to enjoy the reno process:) Happy renovating Share this post Link to post Share on other sites
nylswaj 0 Report post Posted April 5, 2011 Welcome! I always believe that selecting the one who does the reno is all about chemistry and being able to click. Trust your instinct, as long as u feel good and think he is good. Just go for it to enjoy the reno process:) Happy renovating Hahaha thanks for welcoming me! =) was still trying out how to upload the pics lucky got the guide at the main page. LoL. Share this post Link to post Share on other sites
footprint 0 Report post Posted April 5, 2011 Welcome! Blk 449 I guess? Hee.. Hmm.. Jus a query, from most floorplan, a divider before ur main door will means blocking the whole entrance. Also, u mention hacking of kitchen wall whi h I presume the o e facing dining area? From ur 3d not shown or perhaps can't see from the angle it was taken. Perhaps shall wait for mOre updates! Btw, comfy level with id is definitely impt. Most id, whether good or bad, can be really nice before start of everything. U got to ensure the quotation is stated down Very clearly of what is provided n given, esp as type of materials used. To ensure no additional topup during the midst of renovation. Share this post Link to post Share on other sites
nylswaj 0 Report post Posted April 5, 2011 Welcome! Blk 449 I guess? Hee.. Hmm.. Jus a query, from most floorplan, a divider before ur main door will means blocking the whole entrance. Also, u mention hacking of kitchen wall whi h I presume the o e facing dining area? From ur 3d not shown or perhaps can't see from the angle it was taken. Perhaps shall wait for mOre updates! Btw, comfy level with id is definitely impt. Most id, whether good or bad, can be really nice before start of everything. U got to ensure the quotation is stated down Very clearly of what is provided n given, esp as type of materials used. To ensure no additional topup during the midst of renovation. Hello footprint! Hahaha, how did u know ar, did i gave too obvious hints or you must be active in Jadespring FB =P We decided on the divider cos we didn't want to open the door then can see the whole house le, so got abit of privacy.. Hee, i didn't say hack kitchen wall wor, i say hack wall, haha, its to hack the wall between MBR and bedroom 2 for my walk-in-wardrobe..Hehe. We headache choosing painting colour.. alrdy chosen bt decided to wait to put into the 3D drawing again b4 confirming colour.. Whats the theme of your house? Yah, comfort level most impt bah, our quotation stated pretty clearly, me and fiance went through many times and compared with various quotation found their most comprehensive..Haha. Thanks for your advise though, top-up inevitably if its requested from us definitely but well, since we chosen our ID must have faith in him! Hehe. I got question, how u insert the signature at the end of ur post? Sorry ar, new here a lot of things dunno how to use =P Share this post Link to post Share on other sites
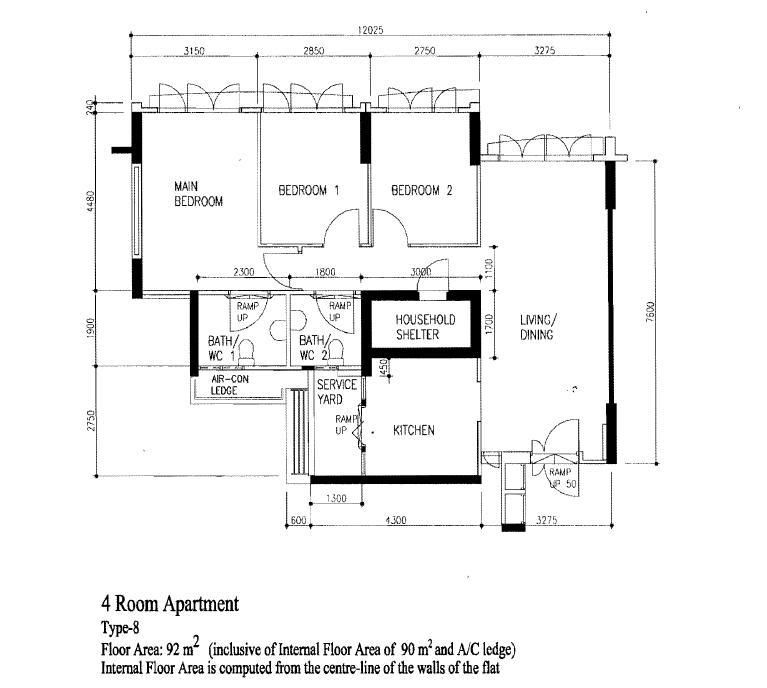
nylswaj 0 Report post Posted April 5, 2011 Here's a copy of our floor plan.. http://i1201.photobucket.com/albums/bb350/...4/FloorPlan.jpg Share this post Link to post Share on other sites
AbbyRosita 0 Report post Posted April 5, 2011 Welcome to RT! Share this post Link to post Share on other sites
Ericchiu 0 Report post Posted April 5, 2011 Welcome, lets enjoy our renovation process together in RT Share this post Link to post Share on other sites
footprint 0 Report post Posted April 5, 2011 Signature can be edited thru "my control" Left side click on "signature" Mainly make sure what supposed to give is given with no additional topup unless requested hor. So divided gg be in middle of living area? Share this post Link to post Share on other sites
nylswaj 0 Report post Posted April 6, 2011 Signature can be edited thru "my control" Left side click on "signature" Mainly make sure what supposed to give is given with no additional topup unless requested hor. So divided gg be in middle of living area? Okieee thanks will try to edit later =) Yah, we also don't want additional top-up, budget **** tight with all the wedding expense also.. haha but thanks for the reminder =) The divider not really in the middle of the room, its like L-shape connecting from the shoe-cabinet? More near towards the door bah.. The divider also serve as a cabinet to put wine/alcohol if u can see frm the pics. hee. Share this post Link to post Share on other sites
C&S 0 Report post Posted April 6, 2011 Hihi fellow JS-er, Welcome to RT like your divider concept and a place to put alcohol.. nice layout.. all the best to your reno , cant wait to see your wiw and reno progress too.. Cheers Okieee thanks will try to edit later =) Yah, we also don't want additional top-up, budget **** tight with all the wedding expense also.. haha but thanks for the reminder =) The divider not really in the middle of the room, its like L-shape connecting from the shoe-cabinet? More near towards the door bah.. The divider also serve as a cabinet to put wine/alcohol if u can see frm the pics. hee. Share this post Link to post Share on other sites
emobebe 1 Report post Posted April 6, 2011 Hi, Welcome to RT! Nice 3D drawings.... Can't wait to see more photos from your side. Meanwhile, enjoy the process of reno! Cheers:) Emobebe Share this post Link to post Share on other sites
nylswaj 0 Report post Posted April 6, 2011 Hihi fellow JS-er, Welcome to RT like your divider concept and a place to put alcohol.. nice layout.. all the best to your reno , cant wait to see your wiw and reno progress too.. Cheers Hello! So many JS pple here! =) Thanks thanks, this idea actually came from my fiance cos he like to display his wine/alcohol..haha (lucky no space if not he wants a bar table! like so uncle *ok,personal preference here,no offence*) =P I can't wait for my WIW to be up in 3D too, thats like every girls' dream. LoL. Btw u frm P1 or P2? Share this post Link to post Share on other sites
C&S 0 Report post Posted April 6, 2011 haha..that idea was good and nice to have.. yah true..WIW is every girls dream..haha..too bad i didnt do for mine..cos need to cater space for the little one..heh.. i frm P2 too Hello! So many JS pple here! =) Thanks thanks, this idea actually came from my fiance cos he like to display his wine/alcohol..haha (lucky no space if not he wants a bar table! like so uncle *ok,personal preference here,no offence*) =P I can't wait for my WIW to be up in 3D too, thats like every girls' dream. LoL. Btw u frm P1 or P2? Share this post Link to post Share on other sites
nylswaj 0 Report post Posted April 6, 2011 haha..that idea was good and nice to have.. yah true..WIW is every girls dream..haha..too bad i didnt do for mine..cos need to cater space for the little one..heh.. i frm P2 too Oicc.. Hee. Cos only 2 of us staying so thought shld make use of the rooms =) then MBR got bigger space.. Have u gotten ur keys? Btw any1 can advise what to do for door opening? The only thing we know is roll pineapple. LOL. Share this post Link to post Share on other sites