Jump to content
Find Professionals    Deals    Get Quotations   Portfolios
Sign in to follow this  
Ando Tadao

5RM Resale: Let there be light

Recommended Posts

I have gathered much tips and information from this forum prior to my renovation, it is perhaps now time for me to contribute.

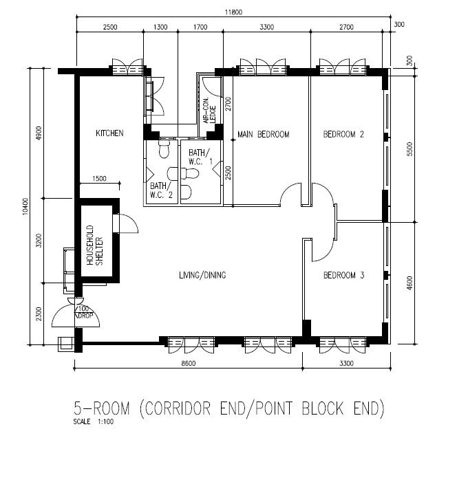
Unit: 5I Resale @ 1184 sqft
Theme: Vaguely minimalist
Duration: 12 weeks (until 1st handover)
Budget: 100,000 (spending thus far: 93,378)

We chose this unit after only 6 viewings; we love the layout and window placements, the windows are either north or south facing, and the house is windy and brightly lit all day / all year round. 
Furthermore, with our kitchen window facing north, we can make a little herbs garden!

Floor Plan:
 

Floor_Plan.jpg

Edited by Ando Tadao
 

Share this post


Link to post
Share on other sites

Join 46,923 satisfied homeowners who used renotalk quotation service to find interior designers. Get an estimated quotation

ID/Contractor search
 

Not intending to meet too many candidates hence I approached initially just an ID and a Contractor.

The Minimalist Society
(Contact: Appointment must be made through online registration - https://minimalist.sg/)
Chance upon their facebook page while researching on minimalist style, made an appointment via their online portal and met one of their associates a week later.
General feeling was good, gave them a list of items I had in mind, a quotation came 2 weeks later. Their price was indeed quite competitive for an ID, boss appeared to be friendly too.
However, they did not come back after I amended some mistakes in the quotation and questioned about the 16 dollars psf tiling work. 

So moved on.

Chun Xiang
(Contact: Edmund @ 90186223)
The famous duo who needs no introduction. Found Edmund's hp while googling, dropped him a whatsapp message and met up a few days later. 
Very experience indeed, quick to understand but like most had commented, offer no design insights. Quotation came 3 days later with 90% accuracy (after some chasing). Chatted with him on a few amendments and the next quotation came a week later. (another reminder sent)
In the midst of quotation revision, I took up SketchUp and did some rendition to visualize my design, sent them to Edmund for review but no response ever since.

So moved on again.
While researching for the next 2 candidates, I refined my 3D models and scope of work, this time the requirements and specs are almost 95% accurate.
After much reviewed, decided to meet up with another ID and Contractor.

H2O
(Contact: Their website http://www.h2ointerior.com.sg/ or Mr. K @ 90222321)
Another famous name in the forum, but instead of going straight to Mr. K, I actually dropped a note on their website. Few days later I was approached for a meet up at their office.
At their office, an understated space nested in an industrial building near Paya Lebar MRT, we were greeted by a young lady named Celine. My my was she an introvert or what? Throughout the 45mins of discussion she offered literally nothing and did not even show us any samples or concepts or projects! 
I sort of dropped her almost instantaneously but lo and behold, the quotation came just 3 days later with close to 100% accuracy! I replied with a few comments and again after 3 days a revised version came with all comments replied!
I was then impressed by the efficiency and have decided to give her another chance.

Green & Lush
(Contact: Their facebook Green And Lush or Janice @ 82189147)
Another company that I chanced upon while researching on minimalist design, sent a message to Abby via facebook and was arranged to meet up with her associate, Janice.
Janice was a nice and brilliant lady, experienced, knowledgeable and have good eyes for design. We had a wonderful chat but the first quotation came a week late from the promised date (with a few reminders), then I did some amendments but revised quotation never got to see the light.
She was probably too busy; it was a pity because her price was good and I really like her vibes. 

Finally we have selected Celine from H2O, before I present to you the final verdict, let's first talk about a few other things.
(Teaser: in conclusion we are rather satisfied with the decision.)
 

Edited by Ando Tadao
 

Share this post


Link to post
Share on other sites

Design and Jobscope:

Following is the list of work we presented to the ID/Contractors during first meeting:

Hacking:
- Hack all existing flooring
    o Living room and kitchen
    o 3x Bedrooms
    o 2x bathrooms
- Hack existing wall tiles (2x bathrooms, kitchen)
- Hack Study room wall (40cm from ceiling due to loading beam)
- Hack bomb shelter feature wall

General make good & replacement:
- Make good hacked wall
- Replace 3 bedroom doors wooden frames
- Replace 3 bedroom doors to solid veneer
- Replace toilet doors to PD Louvre
- Paint whole house
    o All walls
    o Ceilings
    o Pipes

Electrical & Plumbing:
- Reinstall all electrical wires and power outlets (double outlet x 22)
- Install new network point (3x)
- Plumbing work for whole house (replace all pipes to stainless steel)
- Install 4 ceiling fans and all lightings (27 points)
- Install (2x) toilet bowls and basins
- Install central heater
- Install hob, chimney hood, build-in oven and kitchen sink

Masonry:
- Lay wood-like floor tiles (3x bedrooms, 1x living/dining room, kitchen)
- Lay wall tiles (kitchen) 
- Lay floor and wall tiles (2x bathrooms)
- Construct kitchen sink cement base & support
- Construct kitchen cabinet cement base
- Construct master bathroom basin cement support (full width 150cm)
- Construct common bathroom basin cement support (standard size 50~60cm wide)

Carpentry:
- Construct full height shoe cabinet (5ft) 40cm depth
- Construct full height foyer cabinet (3ft) 40cm depth
- Construct Distribution Board & umbrella cabinet
- Construct living room 2ft wide laminated full height panel (50cm x 50cm planks)
- Construct study room 30cm depth 6ft wide partition cabinet, with sliding door on the study room side, and laminated panel on the living room side (50cm x 50cm planks)
- Construct study room window settee approx. 6ft.
- Construct study room full height bookshelf (13ft) with swing doors
- Construct 4ft full height TV feature wall
- Construct MBR wardrobe (1x full height x 6ft, 1x 5ft x 6ft) with swing doors
- Construct MBR 20cm depth 2ft full height dresser cabinet with swing door and internal mirror
- Construct kitchen lower cabinet (L-shape 13ft + 3ft ) with Kompactop
- Construct master bathroom basin vanity unit (full width)
- Supply & install master bathroom shower screen glass 
- Construct common bathroom basin vanity unit (standard size)
- Supply & install common bathroom shower screen glass 

Windows:
- Replace kitchen windows to aluminium sliding x2
- Replace bathrooms windows to aluminium top hung x2
- Replace hazed glass and broken handles on all windows

Edited by Ando Tadao
 

Share this post


Link to post
Share on other sites

Theme & Design

We didn't really have a firmed theme in mind, other than minimalistic at core, complimented by wood essence & muted colours, and a relaxing living-dining environment for eat, play, work. 
Another criteria is to have a lot of storage, especially bookshelf for my books (I have stopped counting after it hit 4,000 2 years ago :p)
So the main design concept was to emphasize on study-living-dining interaction, we also wanted to get rid of the TV but since we will still have family and friends visit so a compromise would be to place a TV on a less intrusive wall. 
 
Like I said, I picked up SketchUp along the way to visualized my idea, it was a fairly simple and powerful software with almost unlimited possibilities. I would recommend learning to use this free software, it makes discussion with ID so much easier.
After days of brainstorming, nights of pinterest gazing, I have worked out a model based on our vision and presented to the ID/Contractors during the meet ups.
(p/s: if you are savvy in Chinese, zhihu.com offers a lot of renovation and interior design ideas, which are on a par with websites like livingb*x, hou*z, etc.)

After first design draft, we went to Lamitak, Hafary and SBH showroom to firm up the color palette before meeting up with ID, and selected the following combination:

Laminates from Lamitak - Aomori Beech Aki, Aomori Beech Haru and Designer White.
Tiles from SBH - Wood like tiles 900 x 150mm BONAS NATURAL.
Tiles from Hafary - Cement like 600 x 300mm, 300 x 300mm and white matte 600 x 300mm
KompacPlus - KompacTop 10.20 Boston Cherry, KompacTop 35.20 Linden Cemento

p/s: Lamitak Showroom @ CT Hub is a really nice place to visit, the staffs are friendly and you get to see full size laminates in a relax environment, that can greatly affect your final decision.

SketchUp model:
 

ISO_View.jpg

Edited by Ando Tadao
 

Share this post


Link to post
Share on other sites

Hi! The layout of your house is almost similar to mine! Difference is the facing of the bomb shelter. Looks like you are doing pretty extensive reno works. Hope to see more updates soon :D

 

Share this post


Link to post
Share on other sites

Purchases

Let's talk about purchases, where we went the usual routes (Taobao, Lazada, Ikea, etc.), coupled with recommendations from various forums, e.g. Tampoi Lightings, Tim Wong air-con, etc.

Taobao of course has the lowest price and widest selections, but my first purchase has not been the best experience, for I have received missing parts, wrong colours and items not as described. 
Nevertheless when things got right, they really worth every penny. The forwarder was good too, Mike1383427 @ wechat.

List of purchase (1st round) as follow:

Imperial Distributors (Tim Wong)
- Air-con Starmex FN-series 5-ticks System 4
Special review: 
Tim was a nice guy and his team was professional, we opted for 2 times installation and the work done was of good quality at reasonable speed. They cleaned up the place regardless how messy the house originally was. 
Two things to note though; for one, their normal practice is to insulate both refrigerant (liquid & gas) pipes together, technically I think it is fine but some might not like it. 
Another thing is that they used nail to secure the air-con base plate instead of anchor screw, problem is the wall could crack; mine cracked and it was very diffiult to repair.
If you are particular over these 2 things then better state clearly prior to signing the deal.

Hoe Kee
- Blanco Naya 6 White
- Ariston 20L Slim Storage Heater
- Fuji-oh Hob  FG-772-SVGL
- Fuji-oh Chimney Hood FJS-900R
- Fuji-oh Build-in Oven FE-EL51
- Roz Matte Stainless Steel Towel rack x2

Elite Sanitary
- 2x Baron W888
- 2x Basins

Tampoi Lightings
- Aeratron AE3 50" White
- KDK Baby Fan White
- Vento Fino OAK Chrome
- Vento Fino 2 OAK Chrome
- 3x Surface Mount Box Lights GU10 base

e-Mart Lightings @ Nusa Bestari
- 10x Surface Mount Down Lights (aka Milo tin light) E27 base

Chelsea Lighting @ Jurong West
- Bathroom Mirror Flippable LED Light White

Philips
- Philips Hue White Ambience Start Up Kit
- 4x Philips Hue White Ambience E27 Bulb
- 3x Scene Switch E27 LED Bulb

Ikea
- NISSEDAL Mirror 65cm
- GODMORGON 80cm LED light
- 2x ÖSTANÅ Bathroom ceiling light GX53 base
- 2x RYET GX53 LED Bulb 1000lm
- 8x RYET GU10 LED Bulb 400lm
- GRUNDTAL Rail 80cm
- GRUNDTAL Rail 40cm

Threecubes Lighting
- Megaman Mosaic Track Light x6
- Tracklight white track 1m x2
- Megaman GU10 step-dimmable LED bulb x6

Taobao
- White faucet
- 2x Stainless steel basin mixer 105cm
- 2x Stainless Steel Bidet Spray
- Rain shower set
- Normal shower set
- 2x Kitchen ceiling LED lights
- 2x Guestroom ceiling light with 3x E27 bulb
- 5x Stainless Steel floor traps (my floor traps came too late so I ended up using the tiler's recommended floor trap from Snowy)
- Yeelight smart ceiling light 35cm
- MI Square Surveillance Camera

Lazada
- Ubiquiti Unifi AP LR

MyDigitalLock
- 4ft Laminated + fire-rated main door
- 4ft black scissor mild steel gate
- Epic 2-in-1 Gate lock (2 cards 2 sticker + 1 remote)
- Epic 809L Door lock (2 cards 2 stickers)
- NIKA Slide Arm Door Closer

Muji
- Circulator Fan
- Natural Wooden Table 180cm
- Natural Wooden Bench
- Oak Bed Queen Size

Best Denki
- Panasonic Fridge NR-BX468XS
- Panasonic Washing Machine NA-128VG6
- Panasonic 4K Smart LED TV TH-43EX600S


Outstanding items:
- Apple Homepod or Google Home Max or a pair of Sonos ONE
- Sofa
- Guestroom bed (frame + mattress)
- MBR mattress
- Dining chairs
- Hi-fi console
- DIning cabinet
- Living room sideboard
- Vacuum robot
- Grout Shield service
 

 
  • Like 1

Share this post


Link to post
Share on other sites

Enough talking, let's show some photos before we move on to the concluding chapter.

Picture time

The house at it's original state:

Living_01.JPG

Living_02.JPG

Living_03.JPG

Living_04.JPG

Kitchen_01.JPG

Kitchen_02.JPG

Kitchen_03.JPG

Edited by Ando Tadao
 

Share this post


Link to post
Share on other sites
10 minutes ago, Bumblebee17 said:

Hi! The layout of your house is almost similar to mine! Difference is the facing of the bomb shelter. Looks like you are doing pretty extensive reno works. Hope to see more updates soon :D

Oh ya, I have seen one unit with a layout exactly like yours! Unfortunately it did not work out.

Your layout would have an advantage of better genkan design and MBR wardrobe placement.

 

Share this post


Link to post
Share on other sites

A little token for the tilers.

I wanted to have at least one photograph for each contributors, unfortunately I only get to meet the tiler and the door frame installer with the proper gear. All other works were either too impromptu or it happened at a bad timing where I could not be present.

C'est la vie. 

 

02_Tiler.JPG

 

Share this post


Link to post
Share on other sites

Fast forward 5 weeks and the house was ready for carpentry installation!

The amount of available natural light was mesmerizing, I can foresee a lot of insta-worthy-pose there!

 

 

03_Before_carpentry.JPG

 

Share this post


Link to post
Share on other sites

very clean and minimalist design!

noticed that you added more light points without exposing the wire trunking.

is it done via false ceiling? will like achieve the same clean look

 

Share this post


Link to post
Share on other sites

Create an account or sign in to comment

You need to be a member in order to leave a comment

Create an account

Sign up for a new account in our community. It's easy!

Register a new account

Sign in

Already have an account? Sign in here.

Sign In Now
Sign in to follow this  

×