Jump to content
Find Professionals    Deals    Get Quotations   Portfolios

Recommended Posts

Hi, we applied our 3 room BTO through the SBF 2 years ago in May 2016, we didn't manage to get a good queue number. There wasn't much good selection of units for the project we shortlisted. When it was our turn, all the good units were snapped up. We are left with those units that were south-west facing which mean that we will have slight west sun, the only consolation is that we are still able to secure a high floor unit.

It will be our home sweet home for my 2 girls, my husband and I. I didn't have much budget to renovate my first home then. So, I am pretty excited this time round. Since we apply the SBF 2 years ago, I had been a silent reader of this T-Blog. After a long wait, we finally collected the keys on 6 Mar 2018. We had 'opening door ceremony' on 7 Mar 2018, didn't take any photos as I did not intend to write the T-blog back then. Haha, regretted now, should have taken some photos. 

We decided to engaged someone to see the fengshui. This fengshui master was highly recommended by my sister who engaged her 2 years ago. Madam 9 helps us to do the ritual and the 'opening door' ceremony for us. This house is overall good for us which is a much relieved (we were worried as we didn't have much choices back then, it was like a less ideal unit as it has some west sun). We requested our ID to be around on the door opening day as the fengshui will affect the overall design of the house. He mention that he will be checking the defects for us on that day. Luckily our ID was there, the fengshui had posted some challenges on the design. Firstly, it is the kitchen, she couldn't find an ideal space to place the cooker hob. When she finally found one, the hob needed to place 20 degree slanted. We were like 'huh', I didn't see people placing the hob slanted. Secondly, it is the master bedroom toilet. The toilet was right in the center of the room, no matter how we place our bed, it will still be facing the toilet bowl. Madam 9 suggest to either always close the toilet door and the close toilet bowl cover or the best ideal way is to completely don't use the toilet. We were like 'huh huh again'. My husband decided to heed her advice not to use the toilet as in seal up the whole toilet bowl. Lastly, there is a beam in the direction of where we need to place our bed. So we need to avoid that beam. The last one is less of a problem, as we can do up a feature wall / headboard to avoid it.

After Madam 9 left, we had a long discussion with our ID. He told us that he had done before a project in which the cooker hob is slanted as well. He say that he can do up a wavy / so called a curved. He even showed us the photos of it. We are like 'wow' it does not look weird at all. So that is not much of a problem as well.

The biggest challenge is the toilet, my husband was insistence to seal up the toilet bowl and I was hesitating. So, our ID proposed that if we wish to seal up the toilet, we will do up a dry area with the vanity top for us to washed up, the other part of the toilet he will do extended wardrobe area right inside the toilet.

We didn't have much defects, pretty minor ones. I didn't know that we need to book an appointment date for joint inspection. I thought we can just submit the form. The earliest appointment is on 20 Mar which is next week. I also applied for the cement secreeding at the Bukit Batok HDB branch. We had yet to receive the call from the contractor. So I reckon that the earliest we can start renovation will be in early April.

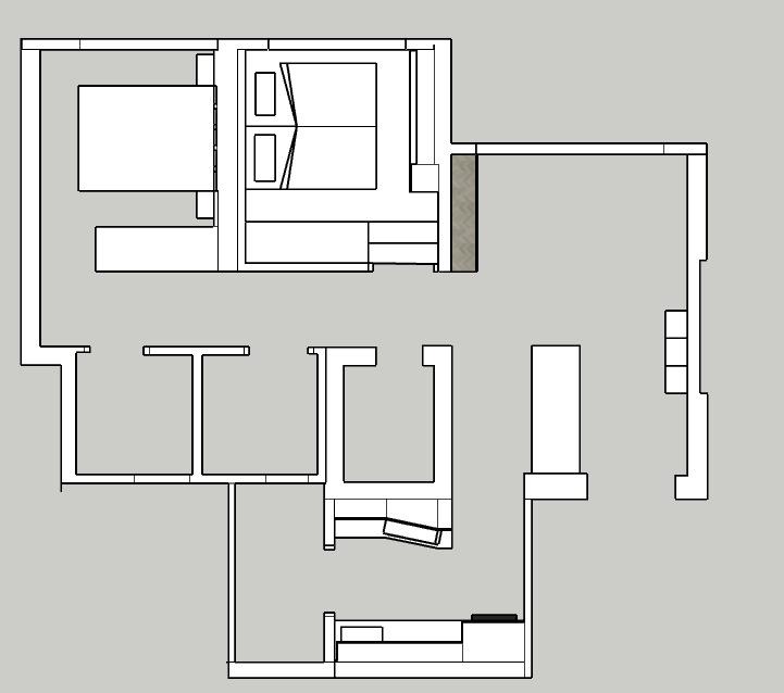
Below is the floorplan. Our theme will be Scandinavian & Minimalist. The colour will be white and light woody colour.

 

Floorplan.JPG

 

Share this post


Link to post
Share on other sites

Join 46,923 satisfied homeowners who used renotalk quotation service to find interior designers. Get an estimated quotation

Renovation Ideas

I had been looking through various websites and youtube to have some inspiration. I was inspired by one of the Taiwanese variety show. The theme is Santorini / Greece. However, my husband wasn't keen. So we settle for Scandi Minimalist. 

The overall look will be mostly white, light woody. Below are some of the random picture that were saved for our new flats which will be subjected to slight changes.

Dining Area

Since the area is very small, we decided to customized the dining table that look something like this. The colour will be white and light woody.

IMG_3251.JPG.ef8b48ab247ea8632d304a550c20d1b5.JPG

   Daughters Room

It is a challenge to have 2 single beds, study tables and wardrobe in the tiny room. Our ID suggests to raise the platform and have tatami beds with storage. I suppose the end product will be something like this.

IMG_3109.PNG.6616488d32138dc408277ac37cf976cf.PNG

 

Master Bedroom

After much discussion with my husband and reading up of toilet in the center of the room, we decided not to seal up the toilet bowl. We have 2 girls in their upper primary, it will be a 'toilet fight' every morning if four of us are going to share the common toilet. Either some of us have to sacrifice our 'beauty sleep' to wake up earlier to use the toilet. Moreover, it will be a hassle to make back if we need them. It will also be difficult to sell away our house next time.

Most people has this problem as this is pretty much a common HDB floorplan. Most of the people will make an extra effort to close the toilet door after use or to do up a feature wall to 'hide' it completely. I had forwarded the below picture to our ID. He says that he complete the sketch-up sometime next week. We shall see what he proposed.

IMG_6014.PNG.e0465cf2a09affff89092675283cd7f5.PNG

 

 

Share this post


Link to post
Share on other sites

Hahaha RenoTalk here **** a lot of silent reader, Congratulation on your New House ! So who did you engage with to Renovated you house? 

Will you be uploading the mood board on RenoTalk ?

 

Share this post


Link to post
Share on other sites
On ‎3‎/‎19‎/‎2018 at 4:41 PM, AndreaLee said:

Hahaha RenoTalk here **** a lot of silent reader, Congratulation on your New House ! So who did you engage with to Renovated you house? 

Will you be uploading the mood board on RenoTalk ?

Thanks Andrea. Yes I will be uploading the mood board soon over the weekend. I engaged someone that is not well-known in this forum. haha. It is a referral from my friend. PM me if you wish to know. I shall not disclosed first in the forum until the renovation is completed ba ..... Keeping my finger cross.

 

Share this post


Link to post
Share on other sites
20 hours ago, matchalatte said:

hello fellow bb resident! which part of BB are you at? mine's also 3 room (at skyline 2) but from your floorplan i dont think you're from skyline right? 

Hi Matchalatte, yesyes, not from Skyline. I am from West Terra. I just collected the keys 2 weeks ago :)

Edited by Elise QW
 

Share this post


Link to post
Share on other sites

Actual Photos

We went for joint inspection today. The contractor say that it will be rectify within a week. Hooray!! The cement secreeding is schedule on the 2 April which mean I am so near to start my renovation soon. I will have a meet-up with my ID over the weekend for tile selection and buying of toiletries. Waiting for the sketch up from my ID as well. I will share the moodboard and the items I shortlisted from ezbuy over the weekend. Busy busy busy........

I managed to take some photos this time round.  

Kitchen

5ab0fe001043f_Kitchen1.JPG.a102acdfad07fbd265df503040d8e78c.JPG

5ab0fea0ca6bb_Kitchen2.JPG.84950bd7f5ae2658640984f94558f407.JPG5ab0fea40791a_Kitchen3.JPG.6b4f967f31748beb89a88dd5907c7d39.JPG

Living Room

5ab0fed47abd0_LivingRoom1.JPG.48a0f28f114a4a9cf735bf9c1614bd3a.JPG5ab0fed8c8acd_LivingRoom2.JPG.11425739dd04f65625c5b80a0eea5472.JPG

5ab0ff025d138_CommonRoom.JPG.caf704a0815cf51810b5f09113724404.JPG

Master Bedroom

5ab0ff2ec719e_MasterBedroom.JPG.49bb1ca4c0ea0f4037e90ece3fc56618.JPG

Common Toilet

5ab0ff5678c2e_CommonToilet.JPG.9b05f0aa9d6e37acb69ad3a8268055e4.JPG

 

Master Bedroom Toilet

5ab0ff7c58089_MasterbedroomToilet.JPG.c09b1354a4992546408642aba6ca0de5.JPG

5ab0ffd7665bd_LaundryArea.JPG.a7744dd11f12fb203c9e072fe915b552.JPG

 

Share this post


Link to post
Share on other sites
On 3/20/2018 at 8:35 PM, Elise QW said:

Actual Photos

We went for joint inspection today. The contractor say that it will be rectify within a week. Hooray!! The cement secreeding is schedule on the 2 April which mean I am so near to start my renovation soon. I will have a meet-up with my ID over the weekend for tile selection and buying of toiletries. Waiting for the sketch up from my ID as well. I will share the moodboard and the items I shortlisted from ezbuy over the weekend. Busy busy busy........

I managed to take some photos this time round.  

Kitchen

5ab0fe001043f_Kitchen1.JPG.a102acdfad07fbd265df503040d8e78c.JPG

5ab0fea0ca6bb_Kitchen2.JPG.84950bd7f5ae2658640984f94558f407.JPG5ab0fea40791a_Kitchen3.JPG.6b4f967f31748beb89a88dd5907c7d39.JPG

Living Room

5ab0fed47abd0_LivingRoom1.JPG.48a0f28f114a4a9cf735bf9c1614bd3a.JPG5ab0fed8c8acd_LivingRoom2.JPG.11425739dd04f65625c5b80a0eea5472.JPG

5ab0ff025d138_CommonRoom.JPG.caf704a0815cf51810b5f09113724404.JPG

Master Bedroom

5ab0ff2ec719e_MasterBedroom.JPG.49bb1ca4c0ea0f4037e90ece3fc56618.JPG

Common Toilet

5ab0ff5678c2e_CommonToilet.JPG.9b05f0aa9d6e37acb69ad3a8268055e4.JPG

 

Master Bedroom Toilet

5ab0ff7c58089_MasterbedroomToilet.JPG.c09b1354a4992546408642aba6ca0de5.JPG

5ab0ffd7665bd_LaundryArea.JPG.a7744dd11f12fb203c9e072fe915b552.JPG

Wow , you have started the renovation already. Congratulations!

 

Share this post


Link to post
Share on other sites
On 3/20/2018 at 8:21 PM, Elise QW said:

Hi Matchalatte, yesyes, not from Skyline. I am from West Terra. I just collected the keys 2 weeks ago :)

thats great! welcome to BB! haha. i LOVE your toilet door frame, its really unique. i wished mine was like that so i wouldnt have to paint over. cant wait to see your home coming together! 

 

Share this post


Link to post
Share on other sites
13 hours ago, Chubbyfat2 said:

Wow , you have started the renovation already. Congratulations!

Thanks :) I will be starting soon at beginning of Apr after HDB complete the cement secreeding. And to get a 开工 date from my fengshui master. 

 

Share this post


Link to post
Share on other sites
11 hours ago, matchalatte said:

thats great! welcome to BB! haha. i LOVE your toilet door frame, its really unique. i wished mine was like that so i wouldnt have to paint over. cant wait to see your home coming together! 

Yes, I love my door frame too. Kinda of unique to have for hdb bto. 

 

Share this post


Link to post
Share on other sites

image.jpeg.8d3ff1aca70d1d17fb33e16bf17a4d5e.jpeg

 

I just got the rough sketch up from ID. I wanted to do a feature wall to coverup the beam in my master bedroom, it seem that it is a bit out of my Budget as it include a feature wall, bed frame and 2 side tables all customised. 

My ID suggest to save cost can go buy off the rack bedframe. I might need to start searching for 7 inches thick headboard bedframe. There will be a home fair and a electronic fair over at the Singapore Expo this weekend. I will probably drop by to see if there is any good deals. Will be comparing the cost saving if I will to buy off rack.

 

Share this post


Link to post
Share on other sites

Tiles Selection

I went to Hafary yesterday for tiles selection. Wow there are so many different types of tiles. My ID helps us to filter to the ones that are suitable for our theme. We had a hard time choosing.

I will be doing tiles for living room and Vinyl for bedroom. The kitchen tiles and wall tiles were leave it as it is. I will be overlaying both the wall and floor for both toilets.

Living Room Tiles

5ab72b5230f38_TilesforLivingRoom.JPG.57d6dfb0e0d0cc202097cf3dd838eff3.JPG

Bedroom Vinyl

Vinyl.JPG.6a9b6d9b90cf002ef56ff7a2101e8f88.JPG

Toilets Wall

The toilet wall will have 2 different types for tiles. One will be of a darker shade for  1 side of the wall, the other 3 sides will be lighter shade.

5ab72d30d88a9_BathroomWall.JPG.61a46736dfd6e4a32c438f44b09dcb69.JPG

5ab72d3064689_BathroomWall2.JPG.8f7b664e1823c7e9e27ed86b087d6814.JPG

Toilet Floor

5ab72d332aa4e_ToiletFloorTiles.JPG.8ffdec86e41f662487a364d54a5415bb.JPG

Table Top for Kitchen

5ab72d9c968c2_TableTopforKitchen.JPG.0545ac61b79397c9ea19ce70dec54345.JPG

Table top for our customized dining table

5ab72dbf5c6de_TableTopforTable.JPG.a733f1a027696957e954e24f8f857ffa.JPG

 

Share this post


Link to post
Share on other sites

Items Shortlisted

I saw their sofa and dining bench online on Castlery. I had yet to go down to see the actual item. What I like about the sofa is that all covers can be washed and it is not too big. My ID say the longest I can get is 1.8M.

Adams-loveseat-front-dove-gold.jpg.daf9c6deed99893bb2f82abe187ab038.jpg

SG-Doris-Bench-front-natural.jpg.79f5a286ae2f51e2c31a33e297daa12b.jpg

 

Electrolux Washer / Dryer

I am looking at 9kg washer (EWF 12933) so that I can wash my Queens size quilt. I am in a dilemma which dryer to buy: heater pump dryer (EDH3786GDW) which is more costly but save electricity in the long-run or the condenser dryer (EDP2074PDW) which much cheaper. Anyone have any review about the Electrolux dryer?

TV

I had shortlisted the LG UHD SMART TV 49UJ632T. My girls love the smart tv as they can watch their youtube and toggle on at the TV. The mouse type remote is also the reason why they love this TV so much. I will get it at one of the neighbourhood shop as it is much cheaper. 

Cooker hob, Cooker hood and Oven

As my mum's house is using Fujioh Cooker hob and hood and it is of a more affordable range. I didn't research much. I just buy SLM-900 (hood), FG2792 (hob) and FV-EL51GL (oven).

Ceiling Fan

We saw the fan in the toiletries shop, the wind is quite cooling. My ID say that the fan is good so we didn't research much too. It is the Amasco Fan with light. We bought 3, 1 for the living room and other 2 for bedroom. The living room one is the one with 5 blades, the bedroom is with 3 blades.

Toiletries

I bought the toiletries with my ID at a shop he recommended. We bought 2 stainless steel basin cabinets, 2 single glass shelf, 2 toilet paper holder, 2 towel rack, 2 rack to put shampoo, 1 rainshower, 1 kithen sink, 1 sink tap, 3 ceiling fans, 1 cooker hood , 1 cooker hob and 1 oven. Total damage is $3,700.

Beds

 I am very headache over what brand of bed to buy. We shortlist one from the Singapore Expo fair, went back and research and find many bad reviews. So back to square 1. Haiz.....

Lightings

We will be buying all the lights from ezbuy. I had already shortlisted what I want and will buy it soon. There is a long list of items so not going to list them all there.

Gas Heater

I had just submitted the order for ferroli PRIMA FE 10 from the citygas website and had arranged online appointment, will be waiting for them to call me to arrange a date for installation.

Air-con

We got our air-con from gain city. We are looking at the Mitsubishi starmex, but it is out of stock. The next batch will be in mid june I think, we cant wait for that long. No choice, get the Mitsubishi heavy industries which are equally good according to my husband's friend from gain city. 

 

What did I left out to buy? I will not be buying fridge as I will be using back my old fridge, old TV also for my room. The new one will be place in the living room. My fengshui master also get back to us to 'start work' on 7 April, sat.

Edited by Elise QW
 

Share this post


Link to post
Share on other sites

Some updates over the week. I had finally place the order at ezbuy for all the lights, some toiletries, dining chairs and some decor stuff.

I had purchase my Queens size storage bed and mattress and my girls single mattress from slumberland. 

We had a meetup last week with my ID to select the carpentry laminates. He had given us many ideas and was patient as we were indecisive which to choose. He say he will provide us the 3D drawing early next week.

HDB promised to do the cement screeding on Mon. I got a call from them last Sat to inform that they will be loading the material to my unit. I went over on Tuesday, nothing was done, not even the material can be seen. I called the officer in charge and she say she had mistaken me as the other block. Oh my, I had arranged the renovation to start next Monday. The 开工 schedule on sat. I called the officer now no answer and no reply of message.

My schedule going to delay again. 

 

Share this post


Link to post
Share on other sites

Create an account or sign in to comment

You need to be a member in order to leave a comment

Create an account

Sign up for a new account in our community. It's easy!

Register a new account

Sign in

Already have an account? Sign in here.

Sign In Now
Sign in to follow this  

×